株式会社Beezロゴ


ホーム
物件情報
会社案内
仲介実績
お問い合わせ


埼玉で 貸倉庫・貸工場・売倉庫・売工場 をお探しのお客様!!
まずはお気軽にお問い合わせ下さい  048-263-2882

物件情報
現在の位置:HOME物件情報1坪〜100坪の物件>物件詳細


1坪〜100坪の物件
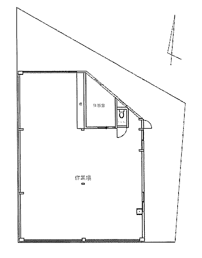
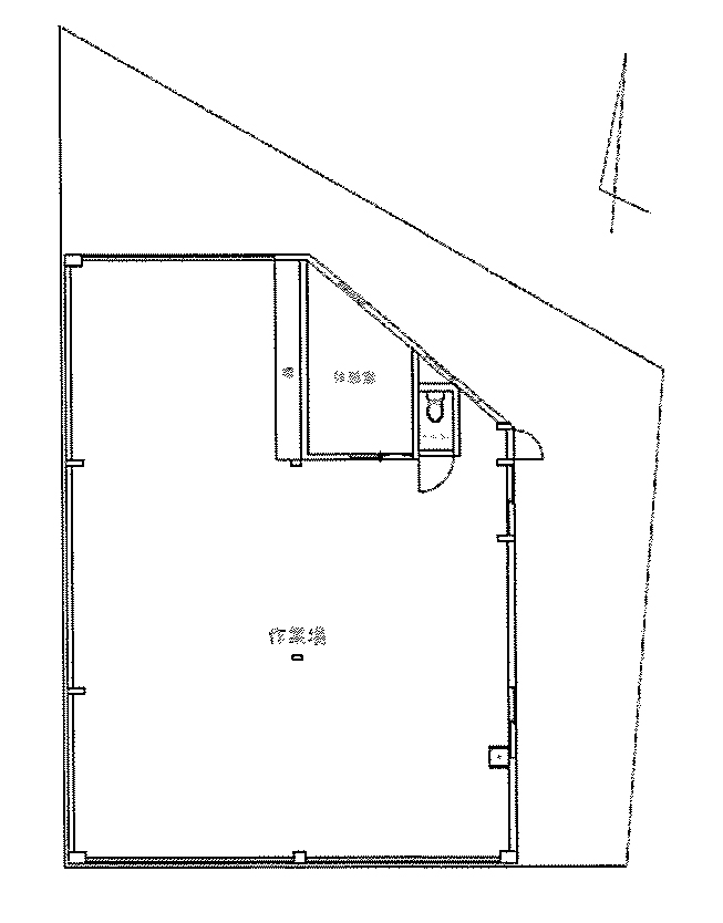
埼玉県嵐山町平澤の貸倉庫
  • ガレージ・作業場も利用可能な貸し倉庫物件
  • 平屋建41坪の貸倉庫

拡大
 


物件NO

所  在  地
用途・構造 坪数
S0-7880 嵐山町平澤 一住・平屋 41.59坪
賃貸条件
賃料 175,000円/月(坪単価4,200円)
預託金 賃料の1ヶ月分
礼金 賃料の1ヶ月分
仲介手数料 賃料の1ヶ月分
入居時期 相談
備考
平屋建41坪 休憩室・駐車スペース付き
国道254号至近 武蔵嵐山駅徒歩7分
ガレージ・作業場も利用可能な貸し倉庫物件

物件一覧に戻る



その他の一覧はこちら

【1坪〜100坪の物件】
【101坪〜200坪の物件】
【201坪〜300坪の物件】
【301坪〜400坪の物件】
【401坪〜500坪の物件】
【501坪以上の物件】
【店舗物件】
【売物件】


掲載している以外にも、たくさんの倉庫・工場物件をご用意しております。
ご希望の物件がない場合でも、お問い合わせからお気軽にお尋ねください。



埼玉の貸し倉庫・貸し工場・売り倉庫・売り工場

株式会社ビーズ

埼玉県川口市芝新町8-22
お電話、FAXでのお問い合わせは
TEL:048-263-2882 FAX:048-263-2883までお願いします。

 
Copyrights (c)2000-2013 by Beez All rights reserved.