株式会社Beezロゴ


ホーム
物件情報
会社案内
仲介実績
お問い合わせ


埼玉で 貸倉庫・貸工場・売倉庫・売工場 をお探しのお客様!!
まずはお気軽にお問い合わせ下さい  048-263-2882

物件情報
現在の位置:HOME物件情報301坪〜400坪の物件>物件詳細


301坪〜400坪の物件
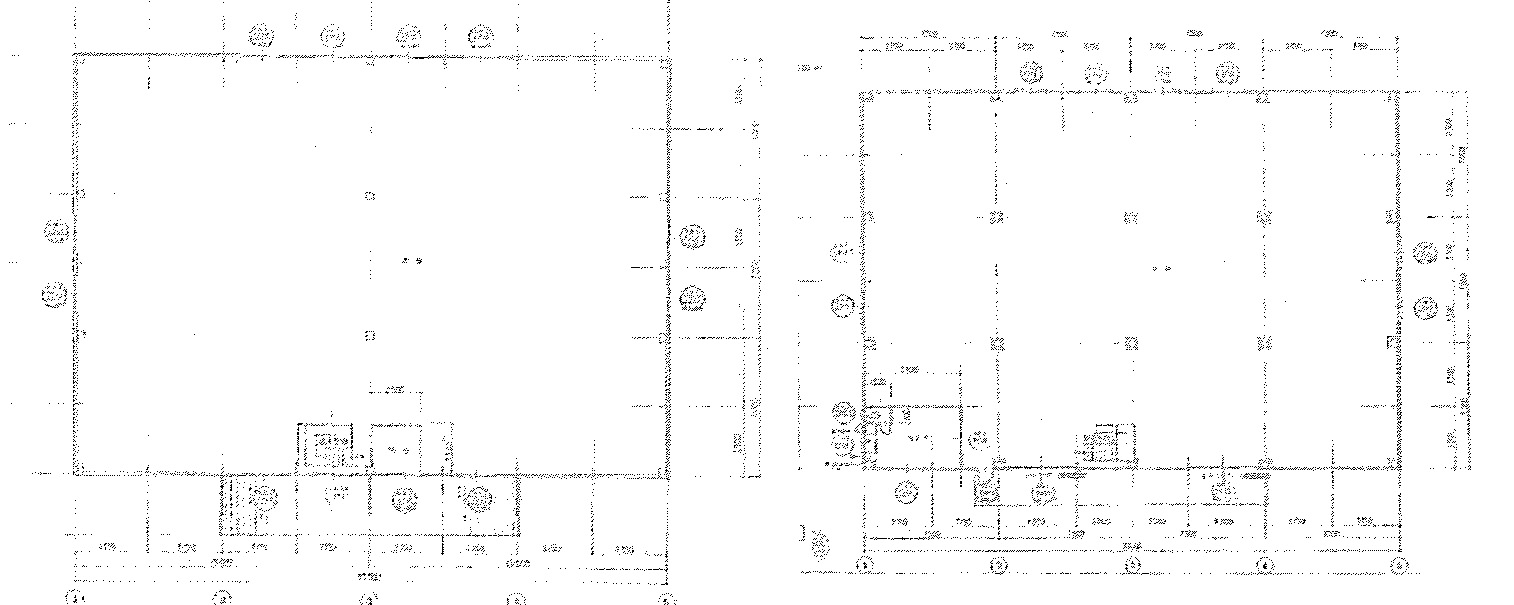
埼玉県草加市青柳の貸倉庫
  • 外環草加ICより3.1kmの貸し倉庫物件
  • 4t車まで搬入可の貸倉庫

拡大
   


物件NO

所  在  地
用途・構造 坪数
S3-0200 草加市青柳 一中高住専・2階 380坪
賃貸条件
賃料 1,760,000円/月(坪単価4,630円)
預託金 賃料の4ヶ月分
礼金 賃料の1ヶ月分
仲介手数料 賃料の1ヶ月分
入居時期 2026年5月1日
備考
1t垂直搬送機あり 4t車まで搬入可
天高1階4m・2階3.6m 前面道路7m
外環草加ICより3.1kmの貸し倉庫物件

物件一覧に戻る



その他の一覧はこちら

【1坪〜100坪の物件】
【101坪〜200坪の物件】
【201坪〜300坪の物件】
【301坪〜400坪の物件】
【401坪〜500坪の物件】
【501坪以上の物件】
【店舗物件】
【売物件】


掲載している以外にも、たくさんの倉庫・工場物件をご用意しております。
ご希望の物件がない場合でも、お問い合わせからお気軽にお尋ねください。



埼玉の貸し倉庫・貸し工場・売り倉庫・売り工場

株式会社ビーズ

埼玉県川口市芝新町8-22
お電話、FAXでのお問い合わせは
TEL:048-263-2882 FAX:048-263-2883までお願いします。

 
Copyrights (c)2000-2013 by Beez All rights reserved.