株式会社Beezロゴ


ホーム
物件情報
会社案内
仲介実績
お問い合わせ


埼玉で 売倉庫・売工場・売却事業用地 をお探しのお客様!!
まずはお気軽にお問い合わせ下さい  048-263-2882

物件情報
現在の位置:HOME物件情報売物件>物件詳細


売物件
【 売作業所 】
  • オーナーチェンジの売り作業所物件
  • 大型トラック搬入可の売作業所

拡大
 

物件No
UR-1587
価格
4850万円
所在地
加須市串作
築年月
昭和42年4月
交通
東武伊勢崎線「南羽生駅」約3.1km
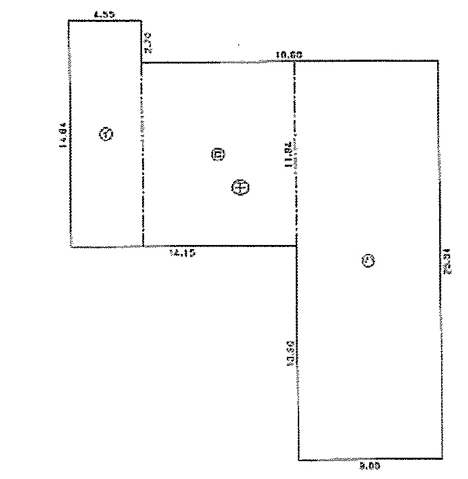
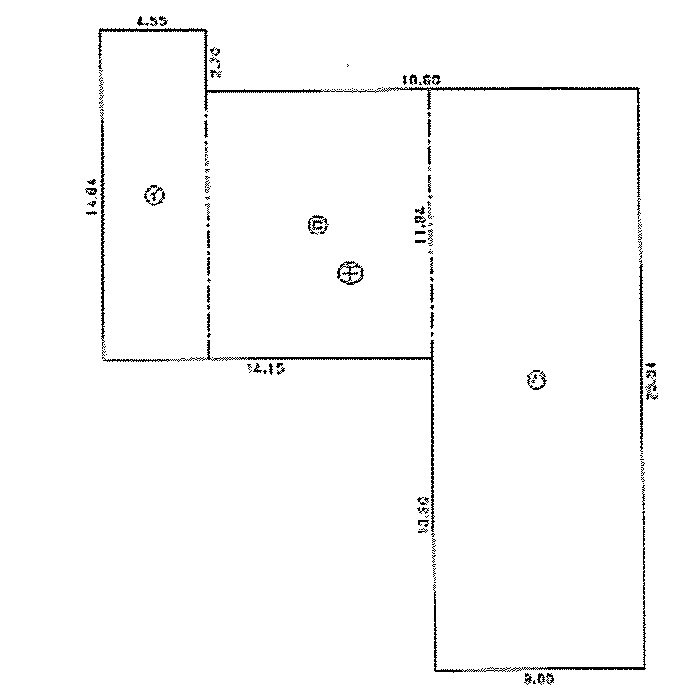
建物面積
413.79u(125.17坪)
土地面積
838.64u(253.68坪)
駐車場
 
土地権利
所有権
建物構造
鉄骨・軽量鉄骨造スレート葺平屋建
接面道路
南西側 幅員約7.5m 南東側 幅員6.6m
東側 基準法外
用途地域
市街化調整区域
地目
宅地
建ぺい率
60%
容積率
200%
現況
賃貸中
引渡日
相談
設備
上水・下水・電灯
備考
現在賃貸中(賃料429,000円) 利回り10.61%
現況有姿・公簿売買
契約不適合責任免責 設備修補責任免責
羽生インター至近

物件一覧に戻る



その他の一覧はこちら

【1坪〜100坪の物件】
【101坪〜200坪の物件】
【201坪〜300坪の物件】
【301坪〜400坪の物件】
【401坪〜500坪の物件】
【501坪以上の物件】
【店舗物件】
【売物件】


掲載している以外にも、たくさんの倉庫・工場物件をご用意しております。
ご希望の物件がない場合でも、お問い合わせからお気軽にお尋ねください。



埼玉の貸し倉庫・貸し工場・売り倉庫・売り工場

株式会社ビーズ

埼玉県川口市芝新町8-22
お電話、FAXでのお問い合わせは
TEL:048-263-2882 FAX:048-263-2883までお願いします。

 
Copyrights (c)2000-2013 by Beez All rights reserved.