株式会社Beezロゴ


ホーム
物件情報
会社案内
仲介実績
お問い合わせ


埼玉で 売倉庫・売工場・売却事業用地 をお探しのお客様!!
まずはお気軽にお問い合わせ下さい  048-263-2882

物件情報
現在の位置:HOME物件情報売物件>物件詳細


売物件
【 売工場 】
  • 住居2LDK付きの売り工場物件
  • 工業地域で39坪の売工場

拡大
   

物件No
UR-2053
価格
6830万円
所在地
朝霞市膝折町
築年月
平成13年9月
交通
東武東上線「朝霞駅」バス20分「膝折横丁」停歩10分
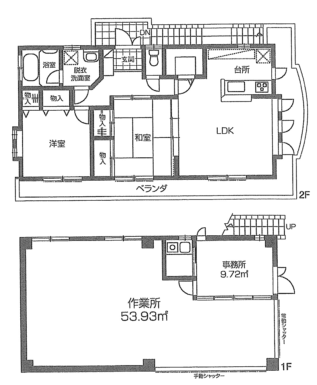
建物面積
132.16u(39.97坪)
土地面積
574.56u(173.80坪)
駐車場
 
土地権利
所有権
(底地借地一括売却)
建物構造
下部:RC鉄 上部:木造 混構造
接面道路
 
用途地域
工業地域
地目
山林
建ぺい率
60%
容積率
200%
現況
居住中
引渡日
相談
設備
 
備考
R254至近 外環道近く

物件一覧に戻る



その他の一覧はこちら

【1坪〜100坪の物件】
【101坪〜200坪の物件】
【201坪〜300坪の物件】
【301坪〜400坪の物件】
【401坪〜500坪の物件】
【501坪以上の物件】
【店舗物件】
【売物件】


掲載している以外にも、たくさんの倉庫・工場物件をご用意しております。
ご希望の物件がない場合でも、お問い合わせからお気軽にお尋ねください。



埼玉の貸し倉庫・貸し工場・売り倉庫・売り工場

株式会社ビーズ

埼玉県川口市芝新町8-22
お電話、FAXでのお問い合わせは
TEL:048-263-2882 FAX:048-263-2883までお願いします。

 
Copyrights (c)2000-2013 by Beez All rights reserved.