株式会社Beezロゴ


ホーム
物件情報
会社案内
仲介実績
お問い合わせ


埼玉で 売倉庫・売工場・売却事業用地 をお探しのお客様!!
まずはお気軽にお問い合わせ下さい  048-263-2882

物件情報
現在の位置:HOME物件情報売物件>物件詳細


売物件
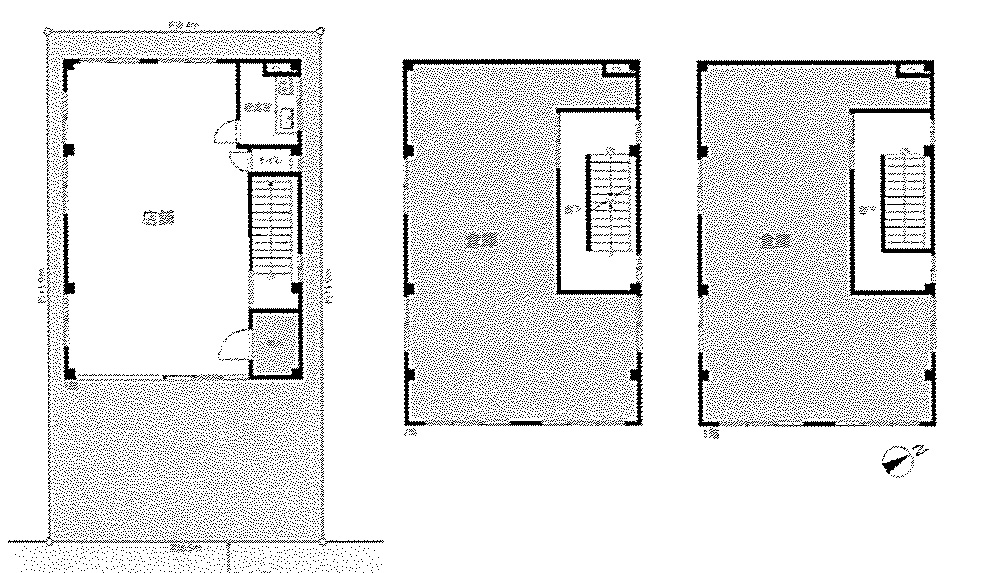
【 売倉庫 】
  • 3階建70坪の売り倉庫物件
  • 国道463号至近の売倉庫

拡大
 

物件No
UR-2093
価格
4980万円
所在地
所沢市けやき台
築年月
1989年10月
交通
西武新宿線「航空公園」徒歩13分
建物面積
233.28u(70.56坪)
土地面積
135.64u(41.03坪)
駐車場
土地権利
所有権
建物構造
鉄骨造3階建
接面道路
南東 6.0m 公道 接面8.5m
用途地域
一種中高
地目
 
建ぺい率
60%
容積率
200%
現況
引渡日
相談
設備
都市ガス
備考
R463至近

物件一覧に戻る



その他の一覧はこちら

【1坪〜100坪の物件】
【101坪〜200坪の物件】
【201坪〜300坪の物件】
【301坪〜400坪の物件】
【401坪〜500坪の物件】
【501坪以上の物件】
【店舗物件】
【売物件】


掲載している以外にも、たくさんの倉庫・工場物件をご用意しております。
ご希望の物件がない場合でも、お問い合わせからお気軽にお尋ねください。



埼玉の貸し倉庫・貸し工場・売り倉庫・売り工場

株式会社ビーズ

埼玉県川口市芝新町8-22
お電話、FAXでのお問い合わせは
TEL:048-263-2882 FAX:048-263-2883までお願いします。

 
Copyrights (c)2000-2013 by Beez All rights reserved.